Ngôi nhà trong vườn đứng
Giao thoa giữa thiên nhiên và hình khối hiện đại

Tựa như một khối sống thở giữa lòng phố thị, công trình này không chỉ là một ngôi nhà – mà là một bản hòa tấu giữa bê tông, ánh sáng và cây xanh. Một nơi chốn nơi kiến trúc trở thành tấm nền cho thiên nhiên vẽ nên những sắc thái sống động của mình.
Ngôn ngữ hình khối – Khi tối giản trở thành ngôn ngữ biểu cảm
Khối nhà hiện lên với những đường nét vuông vức, dứt khoát – là minh chứng cho tinh thần kiến trúc hiện đại. Từng tấm bê tông đúc sẵn được dựng nên với độ chính xác như một tác phẩm điêu khắc. Nhưng ẩn sau sự rắn chắc ấy là sự uyển chuyển trong cách tổ chức không gian – nơi mọi yếu tố đều hướng đến mục tiêu tối ưu ánh sáng, gió và sự kết nối với tự nhiên.
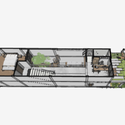
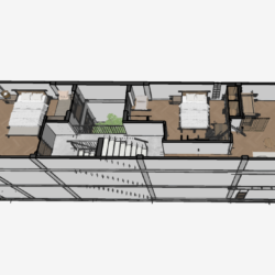
Cây xanh – Lớp áo mềm mại cho cấu trúc thô

Các ban công đan cài dây leo rủ, chậu cây lớn nhỏ xen kẽ – khiến mặt đứng công trình như được bao phủ bởi một tấm rèm xanh mềm mại. Không gian sống nhờ đó được làm mát một cách tự nhiên, đồng thời tạo nên cảm giác thư giãn, tách biệt khỏi sự ngột ngạt của phố xá xung quanh.
Cây được bố trí không chỉ ở mặt tiền mà còn xuất hiện ở mọi tầng, mọi hướng – từ mảng cây bụi tầng trệt đến tiểu cảnh treo trên cao – như thể sự sống đang dần lan tỏa khắp từng tế bào của công trình.
Giao thoa trong – ngoài, xoá nhoà ranh giới

Mặt đứng công trình được tạo thành từ hệ khung thép và các lam gỗ thưa – vừa giúp giảm bức xạ nhiệt trực tiếp, vừa cho phép ánh sáng len lỏi nhẹ nhàng vào trong. Các mảng kính lớn và cửa sổ xoay mở tạo điều kiện để gió lưu thông tự nhiên, đồng thời mang lại cảm giác không gian mở, kết nối chặt chẽ với thiên nhiên bao quanh.
Không gian tầng thượng – nơi hội tụ ánh sáng và thiền tĩnh
Là phần kết nối cuối cùng giữa công trình và bầu trời, sân thượng không chỉ là một nơi ngồi thư giãn hay tụ họp gia đình, mà còn là biểu tượng cho sự mở rộng tâm thức – nơi con người được “thở” cùng thiên nhiên, lắng đọng cùng gió trời và ánh nắng.
Kết luận – Kiến trúc như một cơ thể sống
Công trình này không dừng lại ở chức năng cư trú – nó là nơi cư dân sống chậm lại, cảm nhận được sự tinh tế của khí hậu, ánh sáng, chất liệu và sự sống từ cây xanh. Một biểu tượng kiến trúc đương đại biết thở – nơi hình khối không áp đặt, mà hòa quyện cùng tự nhiên để tạo nên một trải nghiệm sống trọn vẹn, xanh mát và thi vị.
- Land Area : 111m2
- Design and build : lhq Architecture
- Year project : 2025























































Trục Xanh – Nhà Và Niềm Tĩnh Lặng Bên Trong

















































Câu nói giản dị ấy chính là tinh thần khởi nguồn cho công trình nhỏ bé này – một ngôi nhà phố nhưng không đơn thuần chỉ để ở, mà là nơi để hít thở, để cảm nhận và để trở về.




































Khác lạ Không Gian thôn xóm– hình khối xanh hơn trong Kiến Trúc 


